HMR 10X Wiring Diagrams
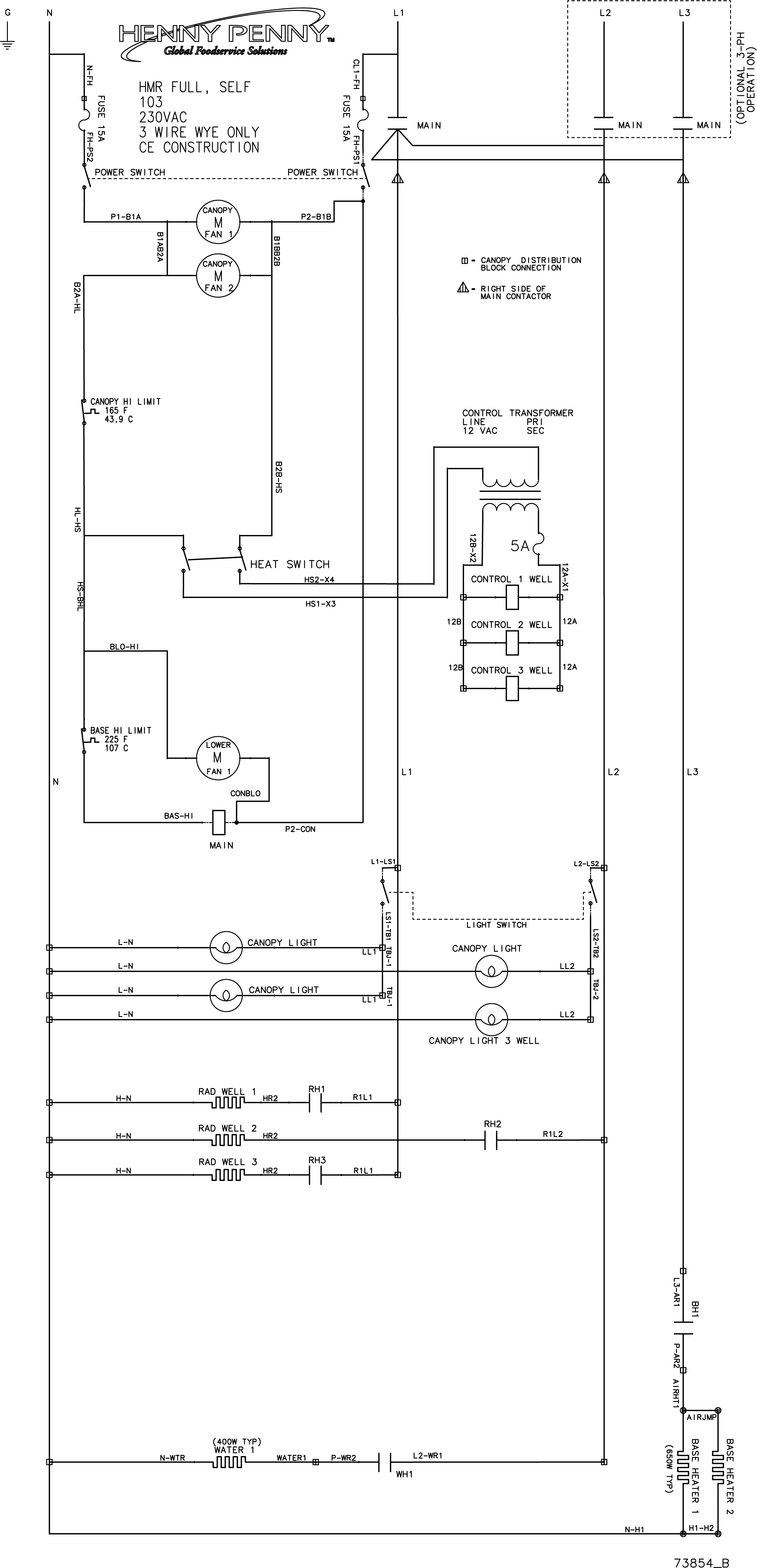
HMR full, self, 103, 230VAC, 3 wire WYE only, CE construction diagram
HMR full, self, combo, 103-107, 220-240V, International, 1 phase, 3 phase diagram
HMR full, self, combo, 103-107, 220-240V, Internationa, 1 phase, 3 phase diagram
Quantity of components found in Domestic Units
| Products | Radiant heaters | Lights | Base Heaters | Canopy fans | Water heaters | Controls | Base Fans | Base High Limits |
|---|---|---|---|---|---|---|---|---|
|
HMR 3 |
3 |
4 |
2 |
2 |
1 |
3 |
2 |
1 |
| HMR 4 | 4 | 5 | 2 | 3 | 1 | 4 | 2 | 1 |
| HMR 5 | 5 | 6 | 3 | 4 | 1 | 5 | 2 | 2 |
| HMR 6 | 6 | 7 | 3 | 4 | 2 | 6 | 3 | 2 |
| HMR 7 | 7 | 8 | 4 | 4 | 2 | 7 | 3 | 2 |
HMR full, self, combo, 103-107, 220-240/380-415VAC, 5 wire WYE only, CE construction diagram
HMR 2 tier, 123-127, 120-208V,1 phase, 120-240V, 3 phase diagram
HMR 2 tier, 123-127, 220-240V, 1phase, 380-415V, 3 phase diagram
HMR 2 tier, 123-127, 220-240V, 380-415 VAC, 5 Wire WYE only, CE construction diagram