Applies to:

EEG 14X Specifications
Electrical Specifications
| Models | Volts | Phase | Hertz | Amps | Wire |
|---|---|---|---|---|---|
|
14X |
208 | 3 | 60 | 39.4 | 3+G |
| 14X | 240 | 3 | 60 | 34.2 | 3+G |
| 14X | 220/380 | 3 | 50/60 | 24.3 | 3NG |
| 14X | 230/400 | 3 | 50/60 | 24.3 | 3NG |
| 14X | 240/415 | 3 | 50/60 | 24.3 | 3NG |
Oil Capacity
30 lbs (13.6 kg) or 15 qts (14.2 liters) per full vat
15 lbs (6.8 kg) or 7.5 qts (7.1 liters) per split vat
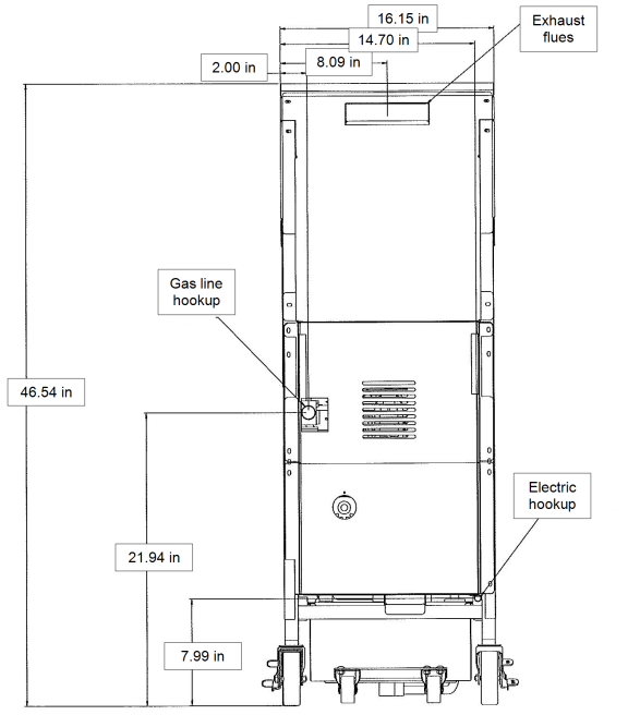
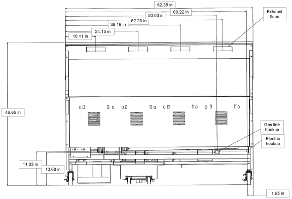
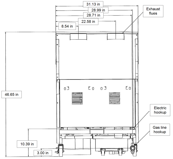
Dimensions
Uncrated Dimensions
|
141 |
142 |
143 |
144 |
|
|
Width |
16.25 in (413 mm) | 31.25 in (794 mm) | 46.75 in (1187 mm) | 62.50 in (1588 mm) |
|
Depth |
32.25 in (819 mm) | 32.25 in (819 mm) | 32.25 in (819 mm) | 32.25 in (819 mm) |
|
Height |
45.75 in (1162 mm) | 45.75 in (1162 mm) | 45.75 in (1162 mm) | 45.75 in (1162 mm) |
Crated Dimensions
|
141 |
142 |
143 |
144 |
|
|
Length |
33 in (838 mm) | 38 in (965 mm) | 54 in (1372 mm) | 68 in (1727 mm) |
|
Depth |
21 in (533 mm) | 39 in (991 mm) | 39 in (991 mm) | 39 in (991 mm) |
|
Height |
52 in (1321 mm) | 55 in (1397 mm) | 55 in (1397 mm) | 55 in (1397 mm) |
|
Volume |
21 ft3 (0.59 m3) | 47 ft3 (1.4 m3) | 67 ft3 (1.9 m3) | 84 ft3 (2.4 m3) |
Shipping Weight
|
141 |
142 |
143 |
144 |
|
|
All Full |
302 lb (137 kg) | 441 lb (200 kg) | 528 lb (240 kg) | 702 lb (319 kg) |
|
All Split |
317 lb (144 kg) | 472 lb (214 kg) | (606 lb (275 kg) | 758 lb (344 kg) |
|
2 Full 1 Split |
554 lb (252 kg) | |||
|
3 Full 1 Split |
719 lb (326 kg) |
Heating Specifications
|
141 |
142 |
143 |
144 |
|
|
kW |
17 kW | 34 kW | 51 kW | 68 kW |
Vat Dimensions
1 Vat
2 Vats
3 Vats
4 Vats